L’avis du spécialiste sur l’abri en bois massif 9m² MODERNE – madriers 28mm Gardy Shelter
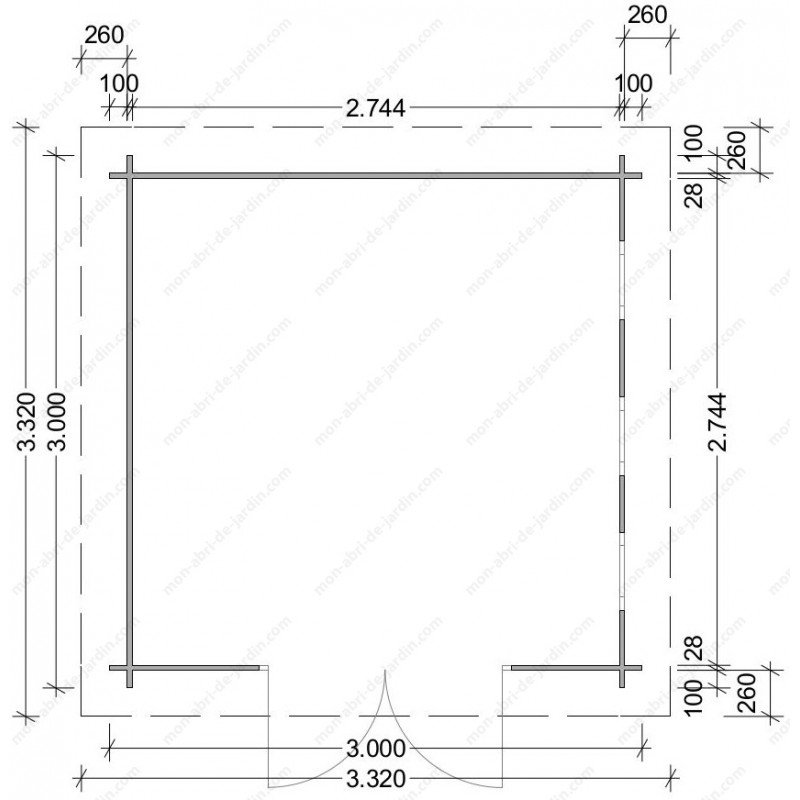
L’abri de jardin moderne 9m² de Gardy Shelter vous séduira par sa couleur naturelle, son toit plat, ses parois, hautes de 215cm qui vous offriront un volume de stockage important, et sa finition de qualité. Muni de 3 fenêtres fixes et d’une grande porte vitrée, toutes en double vitrage, votre abri en bois se targuera d’une bonne isolation, d’une ambiance lumineuse et d’une large entrée qui facilitera le rangement de vos objets encombrants. Se fermant à clé, la porte préservera votre contenu de vols éventuels.
Cet abri de jardin de Gardy Shelter est réalisé en épicéa du Nord – les madriers de 28mm s’emboîtent facilement grâce à un usinage parfait. Livrés bruts, ils nécessitent l’application d’une couche de lasure avant le montage ce qui protégera votre abri en bois contre les attaques biologiques et les conditions extérieures. Si vous voulez apporter une touche déco dans votre jardin, peignez les madriers avec une peinture extérieure bois adaptée dans votre couleur préférée.
La construction robuste et stable de cet abri de jardin moderne 9m² de Gardy Shelter est renforcée par le plancher inclus et les lambourdes, traitées autoclave fournies qui l’isolent de l’humidité du sol. Le toit, également en bois massif est avec une légère pente en arrière, sans planche de finition pour favoriser l’évacuation rapide des eaux de pluies. Il est recouvert d’un feutre bitumé, considéré comme une protection de base en construction. Pour une meilleure étanchéité et une durabilité accrue à votre abri de jardin moderne, il est recommandé de mettre une bâche EPDM, par exemple, spécialement conçue pour les toits plats.





















