L’avis du spécialiste sur l’abri en bois massif traité marron 9m² MODERNE 28mm Gardy Shelter
Gagnez du temps et de l’argent avec cet abri de jardin moderne 9m² de Gardy Shelter ! Teintés marron, les madriers en épicéa nordique ont également subi un traitement à l’usine ce qui rend l’application de lasure avant le montage complètement inutile. Épais de 28mm, ils s’emboîtent d’une manière précise et sont parfaitement protégés contre les attaques biologiques et le pourrissement. Il vous suffira, par la suite, de lasurer l’abri tous les 2 à 3 ans en fonction de son exposition aux intempéries.
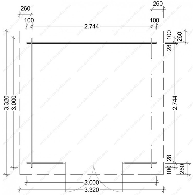
Traité insecticide et fongicide classe III, cet abri de jardin en bois de Gardy Shelter vous surprendra par la hauteur de ses parois qui atteignent 215cm, vous offrant ainsi une surface de stockage généreuse. Vous pourrez superposer vos affaires et marcher librement à l’intérieur – des atouts indéniables qui distingueront votre abri de jardin moderne des autres produits semblables sur le marché. Doté d’une double porte entièrement vitrée, il vous permettra de ranger facilement tout type de produits, même vos objets encombrants.
Solide et stable, l’abri au toit plat 28mm de Gardy Shelter est livré avec un plancher en bois massif qui sert à l’isoler de l’humidité du sol. Le toit, en voliges épaisses de 20mm est couvert d’un feutre bitumé qui est une sous-construction de base. Pour le renforcer et apporter à votre abri en bois une meilleure étanchéité, il est nécessaire de mettre une bâche EPDM ou toute autre protection de toit adaptée aux toits plats.
Outre le toit plat, l’abri de jardin moderne de Gardy Shelter est pourvu de trois fenêtres fixes, positionnées sur la paroi latérale qui contribueront à son ambiance claire et son look attirant. Se fermant à clé, le contenu de votre abri en bois sera sécurisé.
Option couverture bâche de toit autocollante hydrofuge 5m² pour abris toit plat : 3 rouleaux nécessaires
















