L’avis du spécialiste sur l’abri PVC 11,2m² ODYS aspect bois vieilli Grosfillex + kit ancrage offertL’abri de jardin en résine PVC BASIC HOME de Grosfillex est un abri de très grande qualité fabriqué en France.
Ce sont les abris de jardin les plus lumineux de la gamme parce que les portes intègrent de large vitrages permettant une pénétration importante de la lumière.
Les panneaux de PVC de 26mm d’épaisseur sont recyclables à 99% et la structure en acier permet une solidité et une tenue longue dans le temps.
L’usinage parfait des pièces est un gage de qualité et assure un montage rapide des éléments.
Ne nécessitant aucun entretien, l’abri de jardin PVC ODYS est vraiment un produit hors du commun !
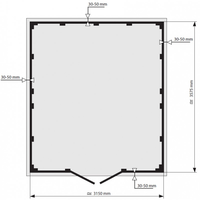
Quelques données techniques :
. Matériau : menuiserie PVC + métal,
. Couleur : aspect bois vieilli,
. Dimensions extérieures hors tout (lxP) : 370x407cm, soit 15,06m²,
. Porte battante semi-vitrée avec poignées en aluminium et serrure à clef : 144x180cm, vitrage : L 0,562 x H 0,595 m & L 0,562 x H 0,272 m,
. Kit de fixation INCLUS
. Garantie : 10 ans
Vidéo de montage des abris de jardin Garden Home de Grosfillex :





























